sanierung mehrgruppiger katholischer kindergarten

Projektdaten

ausführung 2015                    
nutzfläche 668 m²                    
umbauter raum 1380 m³
öffentlicher  Bauherr

Projektbeschreibung

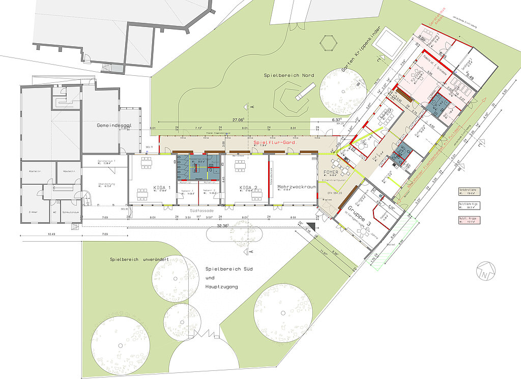
der eingeschossige baukörper mit pultdach wurde energetisch komplett saniert, ein anbau eines verglasten spielflures in pfosten-riegelkonstruktion erweitert die spielfläche und den garderobenbereich, es erfolgte eine sinnvolle umstrukturierung der räume mit verlegung der küche, ein anbau und erweiterung des krippenbereiches  mit nebenräumen folgte im rückwärtigen gartenbereich, die fassaden wurden mit unbehandeltem lärchenholz verkleidet, im innenraum wurden die nagelplattenbinder freigelegt, schallschutzmaßnahmen, einheitlicher linoleumbelag, neutrale wandflächen, naturverbundene ökologische materialien wurden eingesetzt.