umbau und erweiterung am fünfgruppigen städtischer kindergarten mit krippe

projektdaten

entwurf 2023 – 2024
nutzfläche 973 m²
umbauter raum anbau 2466 m³
öffentlicher  Bauherr

projektbeschreibung

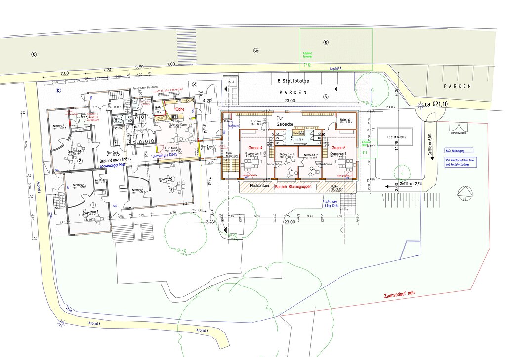
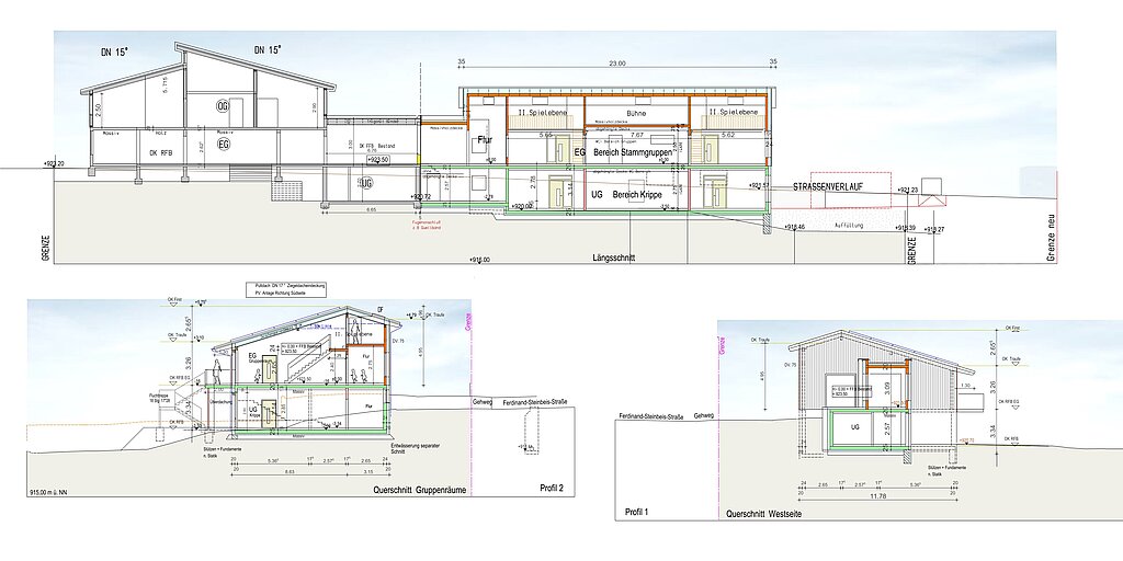
erweiterung am bestehenden fünfgruppigen kindergarten mit anbau von zwei gruppen, ausarbeitung einer machbarkeitsstudie und baugesuch lph 1-4,es erfolgte eine verbesserte räumliche zuordnung der räume im bestand mit anbindung des zweigeschossigen anbaus, die zweigruppige kinderkrippe im gartengeschoss der hanglage besitzt einen separaten zugang sowie einen speiseaufzug, die erweiterung soll in ökologischer massivholzbauweise als nachhaltiges nichtwohgebäude ausgeführt werden sowie eine pv-anlage und anschluss an ein nahwärmenetz.